186 Tô Hiệu, Phường Tân An, Tỉnh Đăk Lăk

Biệt thự 3 tầng ở Bình Trưng Đông Quận 2
Loading...
Biệt thự 3 tầng ở Bình Trưng Đông Quận 2
Loading...
HPLUS CO. LTD
HPLUS CO. LTD
HPLUS CO. LTD

Biệt thự 3 tầng ở Bình Trưng Đông Quận 2

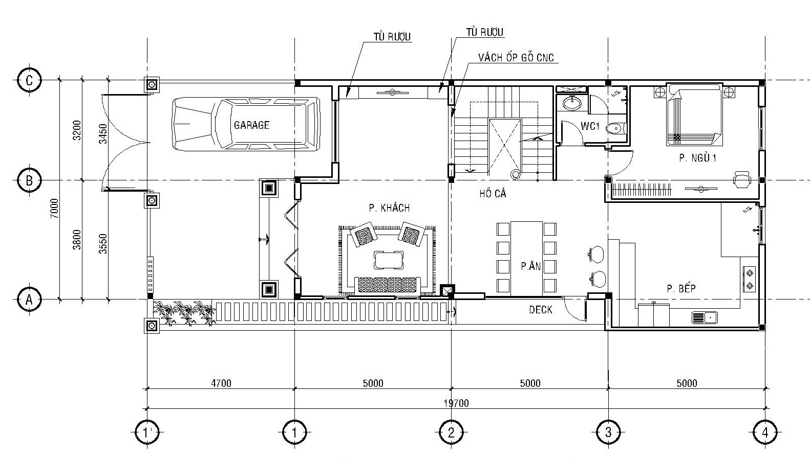
Là căn biệt thự 3 tầng có lối thiết kế theo xu hướng hiện đại nhưng vẫn hòa vào thiên nhiên, các chi tiết kết hợp hài hòa tạo ra sự khác biệt, sang trọng ngay từ cái nhìn bên ngoài.

 Chủ Đầu Tư:  Nhà đất bất động sản Trung Hiếu

 Diện tích xây dựng: 56m2 ( 7mx8m )

 Diện tích đất: 56m2 ( 7mx8m )

 Quy mô công trình : khu nhà biệt thự 1 trệt 3 lầu

 Công năng tiện ích: kinh doanh hoặc sang nhượng nhà đất

 Năm thiết kế: 2019

Chi phí:

Liên hệ
  • Chia sẻ qua viber bài: Biệt thự 3 tầng ở Bình Trưng Đông Quận 2
  • Chia sẻ qua reddit bài:Biệt thự 3 tầng ở Bình Trưng Đông Quận 2

Là căn biệt thự 3 tầng có lối thiết kế theo xu hướng hiện đại nhưng vẫn hòa vào thiên nhiên, các chi tiết kết hợp hài hòa tạo ra sự khác biệt, sang trọng ngay từ cái nhìn bên ngoài.

Tọa lạc trong con hẻm nhỏ Phường Bình Trưng Đông Quận 2 TP.Hồ Chí Minh. Hồ sơ xin phép xây dựng quận 2 được vẽ tối đa diện tích trước đó đã góp phần giúp kiến trúc sư thỏa mái hơn trong việc lên ý tưởng thiết kế kiến trúc,ngôi biệt thự 3 tầng. Sân vườn bao xung quanh tạo cảnh núi đồi như nằm trên cao nguyên Đà Lạt mông mơ. Cao độ nền biệt thự quân 2 được nâng lên tăng phần lấy gió cho phòng khách.

Nhìn từ bên ngoài, người ta có thể thấy ngay được sự kết hợp độc đáo giữa các loại vật liệu, chi tiết thiết kế tạo nên những điểm nhấn rất đáng chú ý. Phần bên dưới được ốp bằng loại đá cao cấp nhằm tạo nên nét sang trọng. Song song đó, loại gạch đỏ được sử dụng ở các mái kiểu ngay cửa ra vào, ban công và một phần trên cùng của mái nhà tạo điểm nổi bật của màu tường trắng xung quanh. Ngoài ra, việc sử dụng mái ngói kiểu Nhật đã tạo thêm phần sang trọng, hiện đại cho căn biệt thự này.

Bên cạnh các thiết kế hiện đại khi nhìn căn biệt thự ở hướng chính diện, chúng ta có thể nhìn thấy được những chi tiết rất "cổ điển" thông qua chi tiết mái ngói ngói nhấp nhô trên các cửa sổ ở hai bên của ngôi nhà. Đúng theo lối thiết kế hiện đại hòa vào thiên nhiên, các ban công hai bên và phí trước ngôi biệt thự sẽ là nơi những thành viên trong gia đình co thể hít thở không khí tươi mát của khí trời vào những buổi sáng sớm hoặc khi đêm về.

Gara nằm ở vị trí bên trái và thiết kế luôn trong nhà có cổng riêng giúp việc di chuyển xe vào nhà được thuận tiện và an toàn.

 

Điểm đặc biệt nhất trong thiết kế của căn biệt thự này chính là năm ở các cửa kính và cửa sổ xung quanh ngôi nhà, qua đó giúp ngôi nhà luôn tiếp nhận đầy đủ ánh sáng tự nhiên từ bên ngoài vào. Ngoài ra, việc bố trí nhiều cửa sổ như vậy cũng giúp việc lấy gió tự nhiên trở nên dễ dàng hơn, chỉ việc mở tung các sửa sổ sẽ cho phép chủ nhân của căn biệt thự đón các luồng gió mát lạnh từ mọi hướng.

Toàn bộ các khung cửa của căn biệt thự đều được sử dụng chất liệu gỗ cao cấp cho độ bền lâu dài theo thời gian, màu sắc hài hoàn với toàn bộ thiết kế sang trọng.

Nhìn vào tổng thể thiết kế của ngôi biệt thự, chúng ta thấy được chủ nhân của ngôi nhà đã muốn tận dụng tối đa diện tích nhưng vẫn dành riêng những lối đi nhỏ với những mảng cỏ để vừa giúp việc di chuyển trong khuôn viên nhà thuận tiện nhất, đồng thời có không gian xanh tạo sự thoải mái. Với thiết kế này, nó sẽ là nơi các thành viên trong nhà có thể đi dạo thư giản vào buổi sáng sớm hoặc sau một ngày làm việc mệt mỏi.

Trên sân thượng của ngôi biệt thự vẫn có một không gian vừa đủ với giàn sắt phía trên, đây là nơi thích hợp cho việc trồng cây xanh, loại dây leo, qua đó có thể tạo nên một khu vườn thu nhỏ ngay phía bên ngôi nhà.

Tính hiện đại, sang trọng của căn biệt thự này không chỉ nằm ở thiết kế bên ngoài, mà khi nhìn vào phần nội thất bên trong chúng ta vẫn có thể thấy rất rõ điều đó. Với chi tiết trần thạch cao trắng tinh tế, kết hợp hệ thống đèn led chiếu sáng tô điểm thêm sự lộng lẫy của ngôi nhà.

Đồ dùng nội thất và một vài chi tiết bằng gỗ, với tông màu hài hòa góp phần tạo thêm sự sang trọng cho không gian bên trong của ngôi nhà.

Ở vị trí cầu thang của căn biệt thự, một mảng trang trí với gạch ốp và các bình hoa đặt kế bên tuy đơn giản nhưng lại là nét chấm tạo điểm nhấn rất tinh tế, có tính thẩm mỹ cao.

 

Dự án nổi bật

DỰ ÁN LIÊN QUAN